Eladó Családi ház Csobánka - Csobánka park

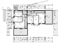
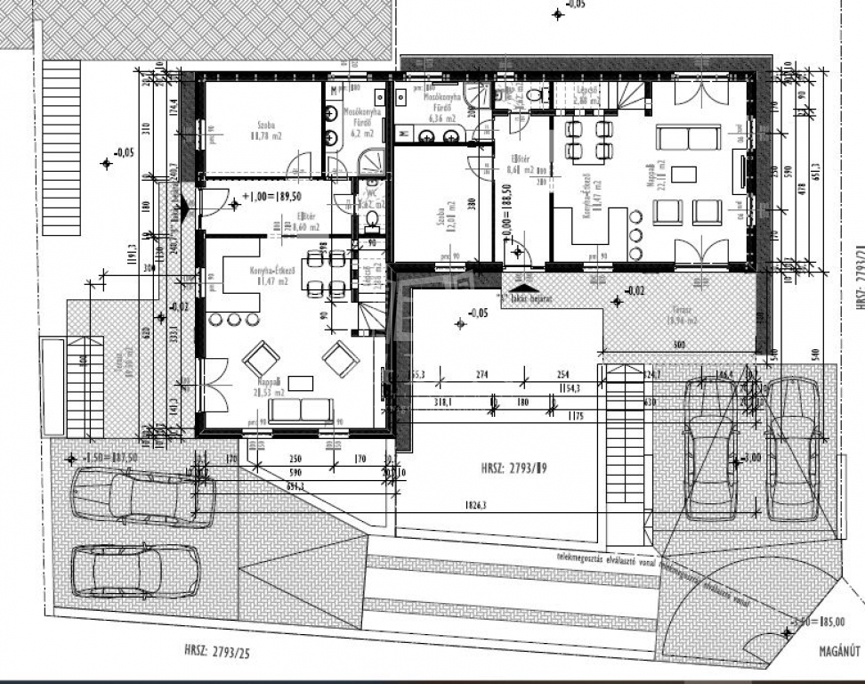
106 m2Alapterület 4 Szoba
89 000 000 Ft Ár
386338Azonosító
További adatok

358 m2 Telek

Panoráma Kilátás

Új Állapot

Könnyűszerkezet Szerkezet

36 m2 Erkély/terasz

Hőszivattyú Fűtés

Összkomfort Komfort

Saját beálló Parkolás

Tömegközlekedés

Amerikai konyhás

Van Kertkapcsolat

2023 Építés éve

Hitelkalkuláció – a részletekért kattintson valamelyik bank logójára!

Különleges ajánlat!
Csobánka legszebb részén, GYÖNYÖRŰ környezetben, új építésű, elvehetetlen panorámás, 106 nm-es, 4 szobás ikerházfél eladó.

A ház elszeparált kertrésszel, kocsibeállóval rendelkezik.
Az ingatlan ára kulcsrakész állapotra értendő, hőszivattyús padlófűtéssel, konyhabútorral.
Burkolat, szaniter, világítótestek még igény szerint alakítható.
Kulcsrakész állapot szerződéskötéstől számított 3 hónap.

Az ingatlan jól megközelíthető helyen, aszfaltos út mellett, elvehetetlen FESTŐI körpanorámás telken épült leinformálható, referenciákkal rendelkező kivitelező által.

Várom megtisztelő hívását hétvégén is!

Csobánka a Megyeri hídtól 15 percre egy elbűvölő völgyben fekszik. Kiváló az infrastruktúra, új óvoda és iskola, gyermekorvos, állatorvos, gyógyszertár, üzletek stb helyben megtalálhatóak. Népszerű kiránduló helyek, túraútvonalak rövid sétával elérhetőek.

Bankfüggetlen hitelcentrumunk minden elérhető bank és hitelintézet ajánlatát versenyezteti az Ön kedvéért, ráadásul díjmentesen. Önnek nincs más dolga, mint elbeszélgetni munkatársunkkal, aki a hallott információk alapján versenyre hívja a bankokat, hogy Ön hosszú távon is a legjobb konstrukciót kaphassa. A legjobb ajánlatokból végül Ön választhatja ki a nyertest. Munkatársaink sokéves szakmai tapasztalattal várják Önt, előre egyeztetve akár a normál munkaidő után is.
Bondár Gábor

Bondár Gábor

Hívjon bizalommal

+36-20-512-Mutasd!

További hirdetéseim

Ingatlaniroda
GDN Ingatlanhálózat - Sasad
+36-30-834-4623

Küldjön üzenetet

Visszahívást kérek

Hasonló ingatlanok