Eladó Családi ház Érd - ÉRD-TÁRNOK HATÁRÁBAN

183 m2Alapterület 5 Szoba
179 000 000 Ft Ár
382291Azonosító
További adatok

5600 m2 Telek

Kertre néző Kilátás

Jó állapotú Állapot

Tégla Szerkezet

Gáz (cirkó) Fűtés

Dupla komfort Komfort

Saját garázs Parkolás

Tömegközlekedés

Nem Amerikai konyhás

Van Kertkapcsolat

2000 Építés éve

Déli Tájolás

Hitelkalkuláció – a részletekért kattintson valamelyik bank logójára!

5600 NM - EZ NEM PUSZTÁN EGY TELEK. EZ BIRTOK. RENGETEG LEHETŐSÉGGEL

CSALÁDI BIRTOK, ÁLATTARTÁS, NÖVÉNY TERMESZTÉS, LOVARDA ÉS MÉG SOK, SOK MINDENRE IS ALKALMAS LEHET

--- ÉRD SZÉLÉN TALÁLHATÓ EZ A RENDKIVÜLI TELEK ---.

MITŐL RENDKIVÜLI?
- 5600 nm (70 x 80 m)
- sík telek
- központi helyen található
- mégis természetközeli
- egyetlen szomszéd van
- aszfaltos úton jól megközelíthető
- KM övezeti besorolású - különleges mezőgazdasági terület
- a telek 40%-a beépíthető
- több önálló ingatlan építésére alkalmas
- a telken található egy 2000-ben épült, jó állapotú, 180 nm-s családi ház
- valamint egy 45 nm tároló
- kiváló a közlekedés (6-os út, 7-es út, M6 autópálya)
- víz, gáz, áram (3fázis) a telekre, ill. a házba bekötve

A TELEK SIK, GONDOZOTT NÖVÉNYZETTEL.
A telket 375 leylandi ciprus szegélyezi. Telken található továbbá platánfa, hársfa, gesztenyefa és gyümölcsfák. A fák közt a telek rendezett, gondozott.

A HÁZ
2000-ben épült, 180 nm-es, 3 szintes.

SZUTERÉN SZINT (75 nm)
- garázs 37 nm
- gépészeti és háztartási helyiség
- hobbi szoba
A szuterén szint is szigetelt és fűtött helyiségekből áll, igy jól kihasználható.

FÖLDSZINT
- Konyha, étkező
- Nappali
- Hálószoba (14 nm)
- Fürdőszoba
- WC

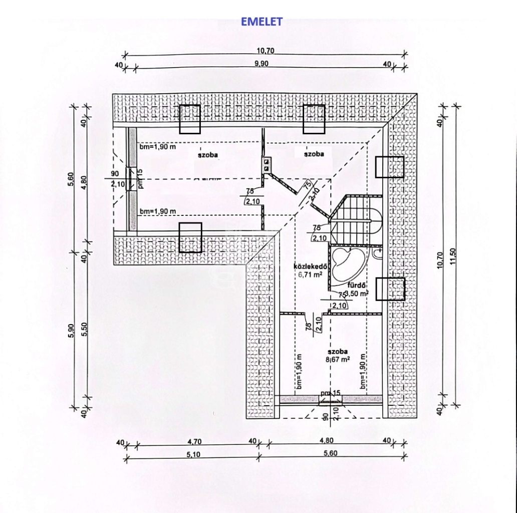
EMELET
- 3 hálószoba
- Fürdőszoba

Az épület 30 cm téglából épült, 8 cm szigeteléssel.
5 éve alakítottak ki az emeleti szobákat és a fürdőszobát.
Fűtésről gázkazán gondoskodik, padlófűtés hőleadással. A ház jó állapotú, jó elrendezésű, világos.


BEFEKTETÉSNEK, VÁLLALKOZÁSNAK, CSALÁDI BIRTOKNAK TÖKELETESEN ALKALMAS TERÜLET, OLYAN ADOTTSÁGOKKAL? AMIBŐL KEVÉS VAN.

További információkkal és megtekintéssel kapcsolatban, keressen bizalommal!




AMENNYIBEN NEM RENDELKEZIK A TELJES VÉTELÁRRAL, segítünk Önnek megtalálni a legjobb megoldást!
BANKFÜGGETLEN hitelcentrumunk minden elérhető bank és hitelintézet ajánlatát versenyezteti az Ön kedvéért, ráadásul díjmentesen. Önnek nincs más dolga, mint elbeszélgetni munkatársunkkal, aki a hallott információk alapján versenyre hívja a bankokat, hogy Ön hosszú távon is a legjobb konstrukciót kaphassa. A legjobb ajánlatokból végül Ön választhatja ki a nyertest. Munkatársaink sokéves szakmai tapasztalattal várják Önt, előre egyeztetve akár a normál munkaidő után is.
Dora Kriszta

Dora Kriszta

Hívjon bizalommal

+36-70-370-Mutasd!

További hirdetéseim

Ingatlaniroda
GDN Ingatlanhálózat - Sasad
+36-30-834-4623

Küldjön üzenetet

Visszahívást kérek

Hasonló ingatlanok