Eladó Családi ház Budapest XX. kerület - Erzsébetfalva

209 m2Alapterület 6 Szoba
79 000 000 Ft Ár
392613Azonosító
További adatok

291 m2 Telek

Udvari Kilátás

Felújítandó Állapot

Tégla Szerkezet

Gáz (cirkó) Fűtés

Összkomfort Komfort

Saját beálló Parkolás

Tömegközlekedés

Nem Amerikai konyhás

Van Kertkapcsolat

1983 Építés éve

Hitelkalkuláció – a részletekért kattintson valamelyik bank logójára!

Befektetők, kivitelezők, figyelmébe ajánljuk!

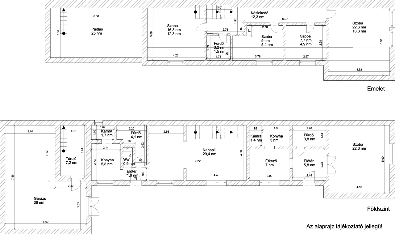
Pesterzsébet legjobb kertvárosi részén kínálunk megvételre egy nettó 209 nm alapterületű, kétszintes, téglából épült, önálló családi házat 291 nm-es telken. Az ingatlan teljes mértékben felújítandó!

A ház földszinti része a 60-as években épült, a felsőszintet a 80-as évek végén építették rá, jelenleg 2 külön bejáratú lakásra van osztva.

Beosztása:
földszint:
- előtér 5,8 nm,
- étkező 7 nm,
-konyha 3 nm,
-kamra 1,4 nm,
-fürdő 3,8 nm,
-szoba 22,6 nm,
-nappali 29,4 nm,
-fürdő 4,1 nm,
-előtér 1,5 nm,
- kamra 1,7 nm,
- konyha 5,8 nm,
- tároló 7,2 nm,
- garázs 36 nm,
-----------------------
129,4 nm.

Emelet:
-szoba 18,3 nm,
-szoba 4,9 nm,
-szoba 5,4 nm,
-közlekedő 12,3 nm,
-fürdő 1,5 nm,
-szoba 12,3 nm,
-helyiség 25 nm,
-------------------------
79,7 nm.

Amivel segítjük az Ön ingatlanvásárlását:
- ingyenes hitelügyintézés,
- jogi háttér,
- földhivatali ügyintézés,
- energetikai tanúsítvány,
- a vevő számára az ingatlanközvetítés ingyenes.

Irodánk 30 éves szakmai tapasztalattal áll ügyfelei rendelkezésére!

Várom szíves megkeresését!
Némethné Tausz Beatrix

Némethné Tausz Beatrix

Hívjon bizalommal

+36-30-426-Mutasd!

További hirdetéseim

Ingatlaniroda
GDN Ingatlanhálózat - Sasad
+36-30-834-4623

Küldjön üzenetet

Visszahívást kérek

Hasonló ingatlanok