Eladó Családi ház Budapest XVI. kerület - Szakoly utca

232 m2Alapterület 6 Szoba
149 900 000 Ft Ár
383797Azonosító
További adatok

805 m2 Telek

Panoráma Kilátás

Közepes Állapot

Tégla Szerkezet

2 m2 Erkély/terasz

Gáz (cirkó) Fűtés

Összkomfort Komfort

Saját garázs Parkolás

Tömegközlekedés

Nem Amerikai konyhás

Van Kertkapcsolat

1998 Építés éve

Északkeleti Tájolás

Hitelkalkuláció – a részletekért kattintson valamelyik bank logójára!

Sokoldalú lehetőség Cinkotán – vállalkozóknak, befektetőknek, nagycsaládosoknak!

Eladásra kínálunk Budapest XVI. kerületének egyik legkedveltebb, kertvárosi részén, Cinkotán, egy kiváló adottságokkal rendelkező, nettó 232 m²-es családi házat, különálló, korábban húsüzemként működő melléképülettel – ez utóbbi a tulajdonos információi szerint kb. 140 m²-es, és sokféle funkcióra átalakítható.

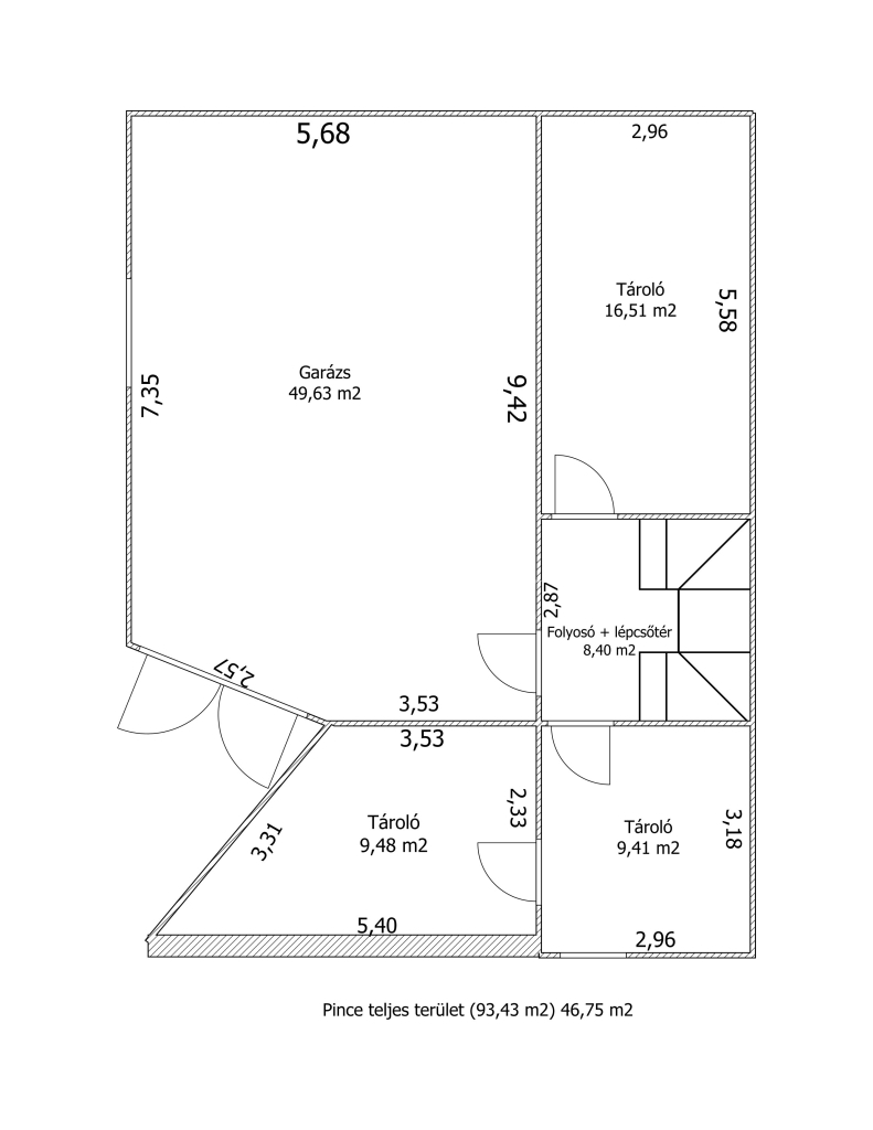
A ház háromszintes kialakítású (pince, földszint, emelet), összesen 6 szobával, hálófülkével és gardróbbal, valamint két fürdőszobával és toalettel. A földszinten egy tágas, jól felszerelt konyha található. A pincében dupla garázs kapott helyet, amelyhez fűtőszálas jégmentesítő rendszerrel ellátott lejáró tartozik – praktikus és kényelmes megoldás a téli hónapokra.

Az összközműves ingatlan egy 850 m²-es, rendezett telken helyezkedik el, a különálló melléképület energiaellátását pedig napelemek is támogatják, így a rezsiköltségek hosszú távon is kedvezők.

Főbb méretek:

Bruttó alapterület: 307 m²

Nettó lakóterület: 232 m²

Pince: 46,75 m²

Földszint: 102,32 m²

Emelet: 83,03 m²

A ház ideális választás többgenerációs családoknak, de vállalkozóknak is kiváló – az önálló épület alkalmas lehet műhelynek, irodának, raktárnak vagy akár autószerviznek is.

Infrastruktúra? Kiváló! Könnyen megközelíthető, nyugodt környezet, mégis közel mindenhez, amire szükség lehet.

Ne hagyja ki ezt a sokoldalúan hasznosítható ingatlant!
Hívjon most a megtekintésért – akár hétvégén is elérhetőek vagyunk.

Finanszírozási igény esetén partnerünk segítségével a teljes banki kínálatból választhat, így megtalálhatja a legkedvezőbb hitelmegoldást is!
Némethné Tausz Beatrix

Némethné Tausz Beatrix

Hívjon bizalommal

+36-30-426-Mutasd!

További hirdetéseim

Ingatlaniroda
GDN Ingatlanhálózat - Sasad
+36-30-834-4623

Küldjön üzenetet

Visszahívást kérek

Hasonló ingatlanok