Eladó Lakás (téglaépítésű) Budapest VIII. kerület - Kálvária tér

68 m2Alapterület 2 Szoba
347 928 €(~ 127 672 180 Ft)
393996Azonosító
További adatok

Utcai Kilátás

Új Állapot

Tégla Szerkezet

8 m2 Erkély/terasz

Hőszivattyú Fűtés

Összkomfort Komfort

Garázs/beálló vásárolható Parkolás

Emelet 2

Van Lift

Kiváló Tömegközlekedés

Amerikai konyhás

Nincs Kertkapcsolat

2026 Építés éve

Délkeleti Tájolás

Hitelkalkuláció – a részletekért kattintson valamelyik bank logójára!

TÁGAS CSALÁDI OÁZIS ÓRIÁSI ERKÉLLYEL: PRÉMIUM A+ LAKÁS A KÁLVÁRIA TÉRNÉL

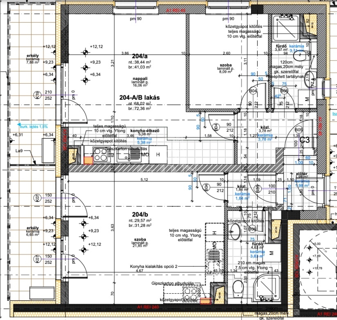
Eladó egy kiemelkedő adottságú, 68 négyzetméteres, 2. emeleti, 2 szobás, új építésű lakás a VIII. kerület legszebb, rehabilitált részén. Az ingatlan ékköve a 8 négyzetméteres, tágas erkély, amely valódi kiterjesztése a nappalinak. Ez a lakás azoknak készült, akik nem akarnak kompromisszumot kötni a belvárosi közelség és a tágas, élhető terek között.

A 2026-os átadású lakás elosztása ideális családok részére: nagyvonalú közösségi tér, szeparált hálószobák és duplakomfort biztosítja a zavartalan mindennapokat. A modern gépészet és a kiváló szigetelés révén a fenntartási költségek egy jóval kisebb lakás rezsijével vetekednek.

Műszaki tartalom:
- Energetikai besorolás: A+ (rezsibiztos otthon)
- Fűtés és hűtés: Levegő-víz hőszivattyú, egyedi Panasonic fan-coil rendszer minden helyiségben.
- Erkély: 8 nm-es, fedett kültéri pihenőhely.
- Szigetelés: 20 cm-es prémium homlokzati hőszigetelés.

KÖRNYÉK ÉS LOKÁCIÓ
A Kálvária tér megújuló parkjai, játszóterei és az egyetemek (NKE, Semmelweis) közelsége miatt ez a környék a fiatal családok és értelmiségiek kedvence. A közlekedés kiváló: M4 metró, 4-6-os villamos és számos buszjárat segíti a gyors városi mozgást.

A lakáshoz a teremgarázsban saját parkolóhely vásárolható 10 millió forintos irányáron. Az ingatlan modern berendezéssel, 2026. áprilisi átadással kerül birtokba.

Várom megtisztelő hívását a hét bármely napján a részletes műszaki adatokkal és a megtekintéssel kapcsolatban.
Némethné Tausz Beatrix

Némethné Tausz Beatrix

Hívjon bizalommal

+36-30-426-Mutasd!

További hirdetéseim

Ingatlaniroda
GDN Ingatlanhálózat - Sasad
+36-30-834-4623

Küldjön üzenetet

Visszahívást kérek

Hasonló ingatlanok